煉油廠加熱爐類型很多,按照管式加熱爐的用途可分為純加熱爐和加熱-反應爐,前者如常壓爐、減壓爐,原料在爐內只起到被加熱的作用;后者如裂解爐、焦化爐,原料在爐內不僅被加熱,同時還有足夠的時間進行裂解和焦化反應。按照管式爐的結構又可分為立式爐、圓筒爐和無焰爐。
1.立式爐
立式爐爐膛為長方形箱體,爐管可水平放置或垂直放置,圖5-2為臥管立式爐,圖5-3為立管立式爐。臥管立式爐其輻射爐管沿爐壁橫排,火焰垂直于爐管上燒,爐膛較窄.對流室置于輻射室之上,長度與輻射室相同,煙囪放在對流室頂部。這種爐的特點是爐管沿長度方向受熱均勻,另外由于其輻射室高度低,故各輻射管間的受熱也比較均勻。對流管較長對提高熱效率比較有利,其缺點是為避免爐管發生過大的彎曲變形,要按一定間隔設置高合金爐管支架。立管立式爐的結構同臥管立式爐很相似,只是爐管改為立式,其主要優點是減少了爐管支架,便于布置多管程,缺點是爐管沿管長受熱不均勻,清掃困難。
立式爐在熱負荷較低時,投資高于圓筒爐,一般在熱負荷較大時使用。
2.圓筒爐
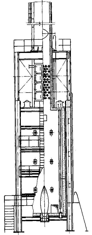
圓簡爐爐膛為直立圓筒形(圖5-4),輻射管在爐膛周圍垂直地排列一周,方形對流室在圓筒體上部,對流管分水平與直立設置兩種。圓筒爐的特點是結構緊湊,造價較低。爐管立式排列,可采用上部吊管固定,節省了管架合金材料用量。但立式排列使得沿管長方向受熱不均勻,距爐底1~5m處的管于表面熱強度*高。從熱負荷上看,圓筒爐通常用作中、小型加熱護,這是因為輻射管不能太長,加大爐膛直徑又會提高造價。圓筒爐的熱效率偏低也使熱負荷的提高受到限制。當熱負荷大于2500萬千卡/小時,可選用立管立式爐。
3.無焰爐
無焰爐結構見圖5-5,其外形和立式爐相似,主要特點是將無焰噴嘴沿爐膛測墻均勻分布。由于無焰燃燒,爐膛體積可縮小,傳熱較均勻,輻射管熱強度高(可達50,000~60,000千卡/米2·時),傳熱較均勻。由于燃燒完全,過剩空氣系數小,爐子熱效率較高。此外,還可按工藝要求來調節各處爐管的熱強度。但這種無焰燃燒噴嘴目前只能燒氣體燃料,另外爐墻結構也比較復雜、造價較高,國內主要用作焦化爐、高溫制氫的轉化爐及裂解爐等。

臥管立式爐

立管立式爐

圓筒爐

無焰爐
洛陽興罡石化設備有限公司——Luoyang Xinggang Petrochemical Equipment Co.,ltd.
專業生產各類管式加熱爐 燃燒器 燃燒器配件等。 0379-62329011